Site icon Food & Culinary Arts Gurukul [ খাদ্য ও রন্ধনশিল্প গুরুকুল ] GOLN

ফুড প্রসেসিং লে-আউট অ্যান্ড প্ল্যান্ট ডিজাইন । ফুড প্রসেস প্ল্যান্ট লে-আউট অ্যান্ড ডিজাইন

ফুড প্রসেসিং লে-আউট অ্যান্ড প্ল্যান্ট ডিজাইন

আমাদের আজকের আলোচনার বিষয় ফুড প্রসেসিং লে-আউট অ্যান্ড প্ল্যান্ট ডিজাইন – খাদ্য প্রক্রিয়াকরণ হলো কৃষি পণ্যকে খাদ্যে রূপান্তরিত করা বা এক ধরনের খাদ্যকে অন্য আকারে রূপান্তর করা। খাদ্য প্রক্রিয়াকরণ অনেক রূপ নেয়, কাঁচা ময়দায় শস্য পিষে, বাড়িতে রান্না করা, এবং সুবিধাজনক খাবার তৈরিতে ব্যবহৃত জটিল শিল্প পদ্ধতি। কিছু খাদ্য প্রক্রিয়াকরণ পদ্ধতি খাদ্যের অপচয় কমাতে এবং খাদ্য সংরক্ষণের উন্নতিতে গুরুত্বপূর্ণ ভূমিকা পালন করে, এইভাবে কৃষির মোট পরিবেশগত প্রভাব হ্রাস করে এবং খাদ্য নিরাপত্তা উন্নত করে।

নোভা শ্রেণিবিন্যাস বিভিন্ন খাদ্য প্রক্রিয়াকরণ কৌশল অনুসারে খাদ্যকে গোষ্ঠীভুক্ত করে।

Table of Contents

ফুড প্রসেসিং লে-আউট অ্যান্ড প্ল্যান্ট ডিজাইন

৪.১ ফুড প্রসেসিং লে-আউট ও প্ল্যান্ট ডিজাইন (Define food processing Inyout & plant design)

একটি খাদ্য উৎপাদনশীল শিল্পকারখানা স্থাপন বা সংস্কারের জন্য যে নকশা প্রণয়ন করা হয়, তাকেই ফুড প্রসেসিং’ প্ল্যান্ট লে- আউট ও ডিজাইন বলে। উক্ত কাজটি কয়েকটি ধাপে সম্পন্ন হয়। ধাপসমূহ নিম্নরূপঃ

১। যে পণ্যটি উৎপাদন করা হবে সেটি নির্বাচন করা।

২। যে প্রক্রিয়ায় পণ্য উৎপাদন করা হবে তা নির্বাচন করা।

৩। সুযোগ-সুবিধা বিশ্লেষণ করা।

৪। অর্থনৈতিক সুযোগ-সুবিধা বিশ্লেষণ করা।

৫। প্রয়োজনীয় যন্ত্রপাতি এবং মেশিনারিজ ক্রয়, স্থাপন এবং পরীক্ষামূলক চালনা করা।

৬। ডিজাইন প্রণয়নের ক্ষেত্রে কারিগরি, অর্থনৈতিক ও সংশ্লিষ্ট উৎপাদন প্রক্রিয়াসমূহ এবং বাজারের চাহিদা বিশেষভাবে বিবেচনা করে ফুড প্রসেসিং লে-আউট এবং প্ল্যান্ট এর ডিজাইন করা উচিত।

৪.২ ফুড প্রসেসিং প্ল্যান্ট লে-আউট এবং নন-ফুড প্রসেসিং প্ল্যান্ট লে-আউট এর পার্থক্য (Distinguish between food processing layout and non-food processing layout) :

ফুড প্রসেসিং’ প্ল্যান্ট লে-আউট ডিজাইন এবং নন-ফুড প্রসেসিং ‘প্ল্যান্ট লে-আউট ডিজাইনের অনেকগুলো উপাদান প্রায় একই। তারপরও এখানে কতগুলো উল্লেখযোগ্য পার্থক্য বিদ্যমান, যেমন- মেশিন/যন্ত্রপাতি নির্বাচন, এদের আকার-আকৃতি, ওয়ার্কিং এরিয়া ইত্যাদি। এ পার্থক্যগুলো নির্ভর করে, কী ধরনের খাদ্যদ্রব্য প্রক্রিয়াজাত করা হবে, কী ধরনের যন্ত্রপাতি ব্যবহার করা হবে এবং এর জন্য কী ধরনের শিল্প রাসায়নিক দ্রব্য ব্যবহার করা হবে তার ওপর। নিম্নোক্ত কারণে ফুড প্রসেসিং ও নন-ফুড প্রসেসিং ‘প্ল্যান্ট লে-আউটে কতগুলো পার্থক্য পরিলক্ষিত হয় :

১। খাদ্যদ্রব্যের শেলফ লাইফ; তাপমাত্রা, পিএইচ (pH) মান, ওয়াটার অ্যাকটিভিটি (a), পরিপক্কতা এবং উপস্থিত অণুজীবের সংখ্যা ইত্যাদি বিষয়ের ওপর নির্ভরশীল।

২। খাদ্যের নিরাপত্তা নিশ্চিত করতে হলে কীট, ৩ঙ্গ, পোকামাকড়, ইঁদুর এবং অণুজীবের আক্রমণ প্রতিহত করতে হবে।

৩। কতগুলো খাদ্য উৎপাদনের জন্য গাঁজন/ফারমেন্টেশন এবং জৈব রাসায়নিক বিক্রিয়ার প্রয়োজন হয়।

৪। সফলতার সাথে খাদ্য উৎপাদন করতে হলে অণুজীব এবং তাদের কার্যকলাপ দৃঢ়ভাবে নিয়ন্ত্রণ করতে হবে।

৫। অনেক ক্ষেত্রে এনজাইমের কারণেও খাদ্য প্রক্রিয়াজাতকরণের ক্ষেত্রে বিশেষ ব্যবস্থা নিতে হয়।

৬। অনেক খাদ্যদ্রব্য রয়েছে, যেগুলো গাছ থেকে সংগ্রহ করার অনেকক্ষণ পরও তাদের জৈব রাসায়নিক বিক্রিয়া সংঘটিত হয় এবং প্রাকৃতিকভাবেই তাতে কিছু অণুজীব উপস্থিত থাকে।

৭। শস্যজাতীয় খাদ্য-কাঁচামাল বছরের একটি নির্দিষ্ট সময়ে পাওয়া যায়। এ সকল খাদ্য-কাঁচামাল নির্ভরশীল খাদ্য উৎপাদন শিল্পকারখানায় উৎপাদন প্রক্রিয়া সারা বছর চালু রাখার জন্য কাঁচামাল মজুদের ব্যবস্থা থাকতে হবে।

৮। খাদ্য প্রক্রিয়াজাতকরণ শিল্পে প্রচুর পরিমাণে বর্জ্য পানি উৎপাদিত হয়, যা উচ্চমাত্রায় BOD লোড বহন করে।

৯। অনেক সময় খাদ্য উৎপাদন কৌশল ফুড স্ট্যান্ডার্ড, BSTI, ISO, GMP ইত্যাদি সংস্থা/আইন দ্বারা নিয়ন্ত্রিত হয়।

৪.৩ ফুড প্ল্যান্ট ডিজাইনের স্পেসিফিকেশনা বা বিনির্দেশনস্ (Specifications of food plant design) :

একটি Food plant design করার জন্য নিম্নোক্ত বিষয়গুলো অত্যন্ত জরুরি:

১ । Plant স্থাপনের জন্য নির্বাচিত জায়গার নকশা।

২। কী কী মেশিন স্থাপন করা হবে তার স্পেসিফিকেশন।

৩। কী কী পণ্য উৎপাদন করা হবে তার তালিকা।

৪। কী পরিমাণ পণ্য উৎপাদন করা হবে তার সম্ভাব্য পরিমাণ।

৫। কী পরিমাণ কাঁচামাল ব্যবহার করা হবে তার পরিমাণসহ তালিকা।

৬। কী ধরনের বর্জ্য এবং কী পরিমাণ বর্জ্য উৎপাদিত হবে তার তালিকা।

৭। ঐ প্ল্যান্ট পরিচালনার জন্য কী ধরনের এবং কতজন শ্রমিক-কর্মচারী ও কর্মকর্তার প্রয়োজন হবে তার সম্ভাব্য তালিকা।

৮। কী ধরনের জ্বালানি ব‍্যবহার করা হবে এবং কতটুকু জ্বালানি লাগবে তার তালিকা।

৯। কী পরিমাণ কাঁচামাল এবং উৎপাদিত পণ্য কত সময় মজুদ রাখা হবে তার সম্ভাব্য পরিমাণ ইত্যাদি।

৪.৩.১ প্ল্যান্ট ডিজাইনের ফ্লো-চার্ট (Flow chart for plant design) :

 

Flow chart for plant design

 

৪.৪ লে-আউট এবং প্ল্যান্ট ডিজাইনের গুরুত্ব (Importance of layout and plant design) : নিম্নে লে-আউট এবং প্ল্যান্ট ডিজাইনের গুরুত্ব উল্লেখ করা হলো:

১। উৎপাদন প্রক্রিয়া সহজীকরণঃ মেশিন ও যন্ত্রপাতির যথাযথ ব্যবহার নিশ্চিতকরণ, উৎপাদন সময় হ্রাস, রক্ষণাবেক্ষণ, সহজীকরণ, এককথায়, সঠিকভাবে লে-আউট এবং প্ল্যান্ট ‘ডিজাইনের মাধ্যমে সমগ্র উৎপাদন প্রক্রিয়া সহজতর হয়।

২। সমন্বয়: শ্রমিক-কর্মচারী, মেশিনপত্র এবং অন্যান্য সহায়ক কার্যক্রমের মধ্যে সমন্বয়সাধনের ক্ষেত্রে লে-আউট এবং প্ল্যান্ট’ ডিজাইনের গুরুত্ব অপরিসীম।

৩। মালামাল পরিবহণে অপচয় রোধঃ সঠিক প্ল্যান্ট ‘ডিজাইনের মাধ্যমে মালামাল পরিবহণ/মালামাল হ্যান্ডেলিং-এ সময়ের অপচয় হ্রাস পায়।

৪.৫ প্ল্যান্ট ডিজাইনে সমস্যার কারণসমূহ (Explain the causes of plant design problems):

নানামুখী উন্নয়নের সংশ্লিষ্টতার কারণে প্ল্যান্ট ‘ডিজাইনে অনেক সময় কিছু সমস্যা দেখা যায়, যেমন-

১। পণ্যের ধরনে পরিবর্তন

২। নতুন পণ্য উৎপাদন

৩। সংশ্লিষ্ট সুযোগ-সুবিধা পুরাতন হয়ে যাওয়া

৪। চাহিদার পরিবর্তন

৫। বাজার পরিবর্তন

৬। প্রতিযোগিতামূলক বাজারে উৎপাদন খরচ কমানো

৭। দুর্ঘটনা

৮। নতুন নতুন নিরাপত্তাবিধির অনুসরণ করা

৯। নতুন প্ল্যান্ট স্থাপনের সিদ্ধান্ত।

৪.৬ বিভিন্ন ধরনের ফুড ও ফার্মেন্টেশন ইন্ডাস্ট্রির নকশা চিত্র (Layouts of different types of food & fermentation industries) :

নিম্নে ফুড ও ফার্মেন্টেশন ইন্ডাস্ট্রিজের নকশা চিত্র প্রদত্ত হলো:

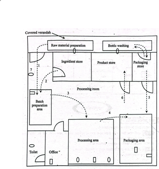
Layout of dairy plant
ফুড প্ল্যান্ট লে-আউট

 

Key:

1 Prepared raw materals in

2 Ingredients from store

3 Prepared batch to processing area

4 Processed food to packaging area

5 Packaging from store

6 Packaged product to store for distribution

7 Hand washing

Food processing plant
Fermentation plant layout

আরও দেখুন : 

Exit mobile version