Site icon Food & Culinary Arts Gurukul [ খাদ্য ও রন্ধনশিল্প গুরুকুল ] GOLN

ফুড প্রসেস প্ল্যান্ট লে-আউট অ্যান্ড ডিজাইন ব্যবহারিক

ফুড প্রসেস প্ল্যান্ট লে-আউট অ্যান্ড ডিজাইন ব্যবহারিক

আমাদের আজকের আলোচনার বিষয় ফুড প্রসেস প্ল্যান্ট লে-আউট অ্যান্ড ডিজাইন ব্যবহারিক । খাদ্য প্রক্রিয়াকরণ হলো কৃষি পণ্যকে খাদ্যে রূপান্তরিত করা বা এক ধরনের খাদ্যকে অন্য আকারে রূপান্তর করা। খাদ্য প্রক্রিয়াকরণ অনেক রূপ নেয়, কাঁচা ময়দায় শস্য পিষে, বাড়িতে রান্না করা, এবং সুবিধাজনক খাবার তৈরিতে ব্যবহৃত জটিল শিল্প পদ্ধতি। কিছু খাদ্য প্রক্রিয়াকরণ পদ্ধতি খাদ্যের অপচয় কমাতে এবং খাদ্য সংরক্ষণের উন্নতিতে গুরুত্বপূর্ণ ভূমিকা পালন করে, এইভাবে কৃষির মোট পরিবেশগত প্রভাব হ্রাস করে এবং খাদ্য নিরাপত্তা উন্নত করে।

নোভা শ্রেণিবিন্যাস বিভিন্ন খাদ্য প্রক্রিয়াকরণ কৌশল অনুসারে খাদ্যকে গোষ্ঠীভুক্ত করে।

Table of Contents

ফুড প্রসেস প্ল্যান্ট লে-আউট অ্যান্ড ডিজাইন ব্যবহারিক

পরীক্ষণ নং-১

পরীক্ষণের নাম: কোল্ড স্টোরেজের নকশা এবং লে-আউট প্রস্তুতকরণ (Make a layout and design of cold storage.)

উদ্দেশ্য (Objectives) :

১। কোল্ড স্টোরেজ সম্পর্কে জানা।

২। লে-আউট সম্পর্কে অবগত হওয়া।

তত্ত্ব (Theory): কী ধরনের পণ্য উৎপাদন করা হবে তার উপর ভিত্তি করে যে লে-আউট করা হয়, তাকে প্রোডাক্ট লে-আউট বলে সাধারণত যে-সকল শিল্পকারখানায় একই ধরনের পণ্য উৎপাদিত হয়, ঐ সকল শিল্পকারখানা স্থাপনের ক্ষেত্রে প্রোডাক্ট বা লাইন লে-“আউট করা হয়।

প্রয়োজনীয় যন্ত্রপাতি (Necessary Instruments) :

১। ড্রয়িং শিট

২। ড্রয়িং বোর্ড

৩। পেনসিল

৪। স্কেল

৫। ইরেজার।

 

কাজের ধারা (Working procedure): ড্রয়িং শিট স্থাপন করে, ড্রয়িং অনুযায়ী লে-আউট এবং ডিজাইন-এর কাজ সম্পন্ন করতে হবে।

সাবধানতা (Precautions) :

১। প্রথমে ড্রয়িং শিট সঠিকভাবে বসাতে হবে।

২। ড্রয়িং-এর ডাইমেনশনস ঠিকভাবে নিতে হবে।

মূল্যায়ন (Evaluation) :

১। কোল্ড স্টোরেজ কী?

২। লে-আউট কী?

৩। প্ল্যান কী এবং কেন করা হয়?

পরীক্ষণ নং-২

পরীক্ষণের নাম: দুধ এবং দুগ্ধজাত পণ্যের প্ল্যান্টের লে-আউট প্রস্তুতকরণ (Prepare a layout of a milk and milk product plant)

উদ্দেশ্য (Objectives) :

১। লে-আউট সম্পর্কে অবগত হওয়া।

২। প্ল্যান সম্পর্কে ধারণা লাভ করা।

তত্ত্ব (Theory) : খাদ্য কারখানার জায়গা নির্ধারণে অনেকগুলো বিষয় মাথায় রাখতে হয়। এতে কাজের একটি উচ্চমান ও উচ্চ পর্যায়ের গ্রাহকের সঠিক প্রয়োজনীয়তা পূরণ করা সম্ভব হয়।

প্রয়োজনীয় যন্ত্রপাতি (Necessary Instruments) :

১। ড্রয়িং শিট

২। ড্রয়িং বোর্ড

৩। পেনসিল

৪। স্কেল

৫। ইরেজার

৬। পেনসিল কম্পাস ইত্যাদি।

 

কাজের ধারা (Working procedure) : ড্রয়িং শিট স্থাপন করে লেট-আউট অঙ্কন করতে হবে। চিত্র অনুযায়ী ড্রয়িংটি ড্রয়িং শিটে অঙ্কন করতে হবে।

সাবধানতা (Precautions) :

১। প্রথমে ড্রয়িং শিট সঠিকভাবে বসাতে হবে।

২। ড্রয়িং-এর পরিমাপ সঠিকভাবে নিতে হবে।

উপসংহার (Conclusion): এই পরীক্ষার মাধ্যমে দুধ ও দুগ্ধজাত পণ্যের প্ল্যান্টের লে-আউট সম্পর্কে বিস্তারিত ধারণা পাওয়া গেল।

মূল্যায়ন (Evaluation) :

১। লে-আউট কী?

২। প্ল্যান কী?

পরীক্ষণ নং-৩

পরীক্ষণের নাম: ফল প্রক্রিয়াজাতকরণ প্ল্যান্টের ডিজাইন ও লে-আউট প্রস্তুতকরণ (Design and prepare a layout of a fruit processing plant)

উদ্দেশ্য (Objectives) :

১। লে-আউট সম্পর্কে জানা।

২। ফল প্রক্রিয়াজাতকরণ সম্পর্কে অবগত হওয়া।

তত্ত্ব (Theory): ফ্রুট প্রসেসিং বলতে বুঝায় বিভিন্ন ধরনের ফল প্রক্রিয়াজাত করে নতুন খাদ্য প্রস্তুত করা।

প্রয়োজনীয় যন্ত্রপাতি (Necessary instruments) :

১। ড্রয়িং শিট

২। ড্রয়িং বোর্ড

৩। পেনসিল

৪। স্কেল

৫। ইরেজার

৬। পেনসিল কম্পাস ইত্যাদি।

 

 

কাজের ধারা (Working procedure): ড্রয়িং শিট স্থাপন করে ড্রয়িং অনুযায়ী লে-আউট সুন্দরভাবে অঙ্কন করতে হবে।

সাবধানতা (Precautions) :

১। ড্রয়িং শিট সুন্দরভাবে বসাতে হবে।

২। ড্রয়িং এর পরিমাপ সঠিকভাবে নিতে হবে।

পরীক্ষণ নং-৪

পরীক্ষণের নাম: ভেজিটেবলস প্রসেসিং প্ল্যান্টের ডিজাইন ও লে-আউট প্রস্তুতকরণ (Design & prepare a layout of a vegetables processing plant)

উদ্দেশ্য (Objectives) :

১। ভেজিটেবলস বা শাকসবজি প্রক্রিয়াজাত প্ল্যান্ট সম্পর্কে ধারণা লাভ করা।

২। ভেজিটেবলস প্রসেসিং লে-আউট প্রস্তুত করা।

তত্ত্ব (Theory) : যে ফুড প্ল্যান্টে শাকসবজি প্রক্রিয়াজাত করে বিভিন্ন খাদ্যদ্রব্য তৈরি করা হয়, তাকে ভেজিটেবলস প্রসেসিং প্ল্যান্ট বলা হয়।

প্রয়োজনীয় যন্ত্রপাতি (Necessary instruments) :

১। ড্রয়িং শিট

২। ড্রয়িং বোর্ড

৩। পেনসিল

৪। স্কেল

৫। ইরেজার।

 

 

কাজের ধারা (Working procedure): ড্রয়িং শিট স্থাপন করে ড্রয়িং অনুযায়ী লে-আউট সুন্দরভাবে অঙ্কন করতে হবে।

সাবধানতা (Precautions) :

১। ড্রয়িং শিট সুন্দরভাবে বসাতে হবে।

২। ড্রয়িং এর পরিমাপ সঠিকভাবে নিতে হবে।

পরীক্ষণ নং-৫

পরীক্ষণের নাম: মৎস্য প্রক্রিয়াজাতকরণ প্ল্যান্টের ডিজাইন ও লে-আউট প্রস্তুতকরণ (Design and prepare a layout of a fish processing plant)

উদ্দেশ্য (Objectives) :

১। মৎস্য প্রক্রিয়াজাতকরণ প্ল্যান্ট সম্পর্কে জানা।

২। মৎস্য প্রক্রিয়াজাতকরণ প্ল্যান্টের লে-আউট প্রস্তুত করতে পারা।

তত্ত্ব (Theory) : যে ফুড প্ল্যান্টে মৎস্য প্রক্রিয়াজাত করা হয়, তাকে ফিশ প্রসেসিং প্ল্যান্ট বলা হয়।

প্রয়োজনীয় যন্ত্রপাতি (Necessary instruments) :

১। ড্রয়িং শিট

২। ড্রয়িং বোর্ড

৩। পেনসিল

৪। স্কেল

৫। ইরেজার।

 

 

কাজের ধারা (Working procedure): ড্রয়িং শিট স্থাপন করার পর ড্রয়িং অনুযায়ী মৎস্য প্রক্রিয়াজাতকরণ প্ল্যান্টের লে-আউট এবং ডিজাইন-এর কাজ সম্পন্ন করতে হবে।

সাবধানতা (Precautions) :

১। ড্রয়িং শিট সুন্দরভাবে বসাতে হবে।

২। ড্রয়িং এর পরিমাপ সঠিকভাবে নিতে হবে।

মূল্যায়ন (Evaluation) :

১। মৎস্য প্রক্রিয়াজাতকরণ প্ল্যান্ট কী?

২। লে-আউট কী?

পরীক্ষণ নং-৬

পরীক্ষণের নাম : মশলা এস্তুতকরণ ইউনিটের নকশা চিত্র বা লে-আউট অঙ্কন (Design prepare a layout of spicen manufacturing unit)

উদ্দেশ্য (Objectives) :

১। মশলা প্রস্তুতকরণ ইউনিট সম্পর্কে জানা।

২। মশলা প্রস্তুতকরণ ইউনিটের লে-আউট প্রস্তুত করতে পারা।

তত্ত্ব: কী ধরনের পণ্য উৎপাদন করা হবে তার উপর ভিত্তি করে মশলা এস্তুতকরণ এলাকার লে-আউট সম্পাদন করতে হবে।

প্রয়োজনীয় বস্ত্রপাতি (Necessary Instruments):

১। ড্রয়িং শিট

২। ড্রয়িং বোর্ড

৩। পেনসিল

৪। স্কেল

৫। ইরেজার।

 

কাজের ধারা (Working procedure): ড্রয়িং শিট স্থাপন করে ড্রয়িং অনুযায়ী নকশা চিত্র বা লে-আউট অঙ্কন করে ডিজাইন এর কাজ সম্পন্ন করতে হবে।

সাবধানতা (Precautions) :

১। প্রথমে ড্রয়িং শিট সঠিকভাবে বসাতে হবে।

২। ড্রয়িং-এর ডাইমেশন সঠিকভাবে নিতে হবে।

মূল্যায়ন (Evaluation) :

১। মশলা প্রস্তুতকরণ ইউনিট কী?

২। লে-আউট বলতে কী বুঝায়?

পরীক্ষণ নং-৭

পরীক্ষণের নাম: বেকারি ও বেকারি পণ্যের প্ল্যান্টের ডিজাইন ও লে-আউট প্রস্তুতকরণ (Design and prepare a layout of a bakery & bakery related product plant)

উদ্দেশ্য (Objectives) :

১। বেকারি পণ্যের জন্য লে-আউট সম্পর্কে জানা।

২। বেকারির লে-আউট সম্পর্কে প্ল্যান অঙ্কন করা।

তত্ত্ব (Theory) : বেকারি ও বেকারি পণ্যের প্ল্যান্ট লে-আউট সম্পর্কে অবগত হওয়া এবং একটি বেকারি ডিজাইন কীভাবে করা যায় তার বাস্তব চিত্র অনুধাবন করা।

প্রয়োজনীয় যন্ত্রপাতি (Necessary instruments) :

১। ড্রয়িং শিট

২। ড্রয়িং বোর্ড

৩। পেনসিল

৪। স্কেল

৫। ইরেজার।

 

কাজের ধারা (Working procedure): ড্রয়িং শিট স্থাপন করে ড্রয়িং অনুযায়ী বেকারির লে-আউট ও ডিজাইন-এর কাজ সম্পন্ন করতে হবে।

সাবধানতা (Precautions) :

১। ড্রয়িং শিট সঠিকভাবে স্থাপন করতে হবে।

২। ড্রয়িং এর ডাইমেনশন সঠিকভাবে নিতে হবে।

মূল্যায়ন (Evaluation) :

১। বেকারি কী?

২। বেকারি পণ্য বলতে কী বুঝায়?

৩। প্ল্যান ও লে-আউট কী?

পরীক্ষণ নং-৮

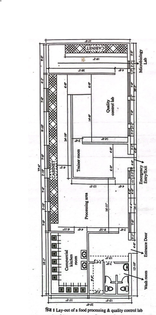
পরীক্ষণের নাম: ফুড কোয়ালিটি কন্ট্রোল ল্যাবের নকশা এবং লে-আউট প্রস্তুতকরণ (Design & prepare a layout of a food quality control lab)

উদ্দেশ্য (Objectives) :

১। ফুড কোয়ালিটি কন্ট্রোল ল্যাব সম্পর্কে অবগত হওয়া।

২। ডিজাইন ও লে-আউট সম্পর্কে জানা।

তত্ত্ব (Theory) : খাদ্য উৎপাদনকারী শিল্পপ্রতিষ্ঠানের পরিকল্পনা একটি অতীব জরুরি ও গুরুত্বপূর্ণ বিষয়। সঠিক পরিকল্পনা না থাকলে উৎপাদিত দ্রব্যের গুণগত মান ঠিক রাখা এবং প্রতিষ্ঠানের বিভিন্ন প্রসেস এর সাথে সমন্বয়সাধন প্রায় অসম্ভব।

প্রয়োজনীয় যন্ত্রপাতি (Necessary instruments):

১। ড্রয়িং শিট

২। ড্রয়িং বোর্ড

৩। পেনসিল

৪। স্কেল

৫। ইরেজার।

 

কাজের ধারা (Working procedure): ড্রয়িং শিট স্থাপন করে ড্রয়িং অনুযায়ী লে-আউট এবং ডিজাইন অঙ্কন করতে হবে। সাবধানতা (Precautions) :

১। প্রথমে ড্রয়িং শিট সঠিকভাবে স্থাপন করতে হবে।

২। ড্রয়িং-এর ডাইমেনশন সঠিকভাবে নিতে হবে।

মূল্যায়ন (Evaluation) :

১। ল্যাব কী?

২। লে-আউট বলতে কী বুঝায়?

৩। ফুড কোয়ালিটি কন্ট্রোল ল্যাব কাকে বলে?

আরও দেখুন : 

Exit mobile version